廠家銷售熱線
17337313559
聯系人:周經理
手機:17337313559
座機:0371-56629096
地址:河南省新鄉市長垣起重工業園區
產品詳情:
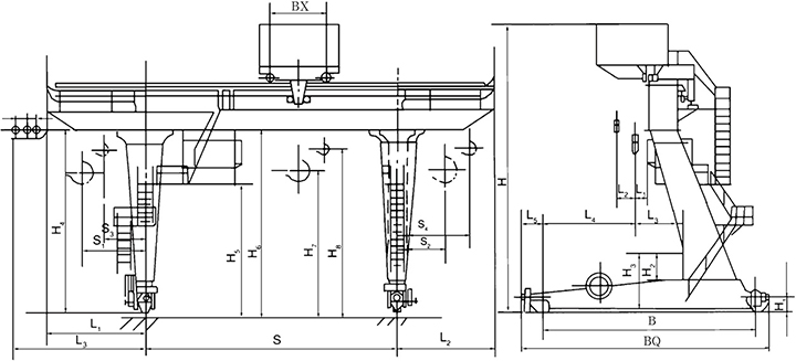
L型單主梁吊鉤門式起重機起升高度: 10M-16M 起升重量: 5T-32T 跨度: 15M-35M 工作環境; -25℃—+40℃ 起升速度: 7.16M/MIN-20M/MIN 運行速度: 39.5M/MIN-48.3M/MIN
適用場合:
吊鉤單梁門式起重機適用于露天倉庫或鐵路沿線進行一般的裝卸及起重搬運作業。
訂貨須知:
本起重機由橋梁、大車運行機構、小車、電氣設備組成。橋架采用箱形焊接結構,大車運行機構采用分別驅動。全部機構均在操縱室內操縱。
起重機導電形式分為電纜和滑觸線兩種,訂貨時任選一種。選用本起重機時須填寫訂貨規范表,須注明使用時工作環境的最低溫度和最高溫度以及電源等。
技術參數:


